
La cultura de los sentidos
Situada en un barrio de tejido bajo, la idea de la obra a surgido de un encargo cuya premisa rectora es desarrollar espacios para “la cultura de los sentidos”. El programa desarrolla una propuesta donde la arquitectura como artefacto estimulador, resulte exaltadora de la experiencia sensorial e inmersiva.
Asi, actúa como artefacto contenedor, formulando un espacio bar restaurante, cuya función es articular el formato microteatro, la música, el cine y eventos diversos, entre ellos expresiones gráficas y plásticas. La fachada sugerente, intimista parte de fabricar una escena urbana de telones de chapa negra. Invertir la escena, considerando al público los actores que surgen desde el proscenio urbano, activando la arquitectura ofrecida.
Un patio de acceso articula y establece un instante de misterio previo, que descubre un espacio espacializado con lucernas, dobles y triples alturas que relacionan las plantas e invocan la luz natural y artificial que generan esas atmósferas apacibles y amables, buscadas como una forma de atrapar con los recursos formales y materiales la mirada y una demora en quienes se permiten sumergirse en la experiencia funcional de la propuesta.
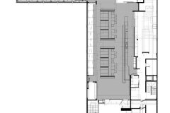
La planta del nivel cero contiene la boletería del microteatro, el resto bar, el soundroom, y al fondo el patio de la selva. La barra se desarrolla en quince metros, mostrando una protagónica lámpara de doce metros. Un árbol suspendido, cortado en láminas separadas para alojar líneas de led iluminan el plano de apoyo de la misma y encienden o exaltan la materia blanda y cálida de la madera que flota en la media luz del espacio.
Con el concurso de una afinada y estudiada ingeniería acústica, se desarrolla este verdadero nido de tecnología, pensado para encuentros musicales con gradas telescópicas, equipamiento de sonido de última generación, proyector de cine e iluminación con la versatilidad necesaria que requieren funciones de conferencias, teatro, cine, show musicales y grabación.
El patio de la selva, por su diseño paisajístico con especies del sub-trópico, está diseñado con estantes, escaleras y gradas, con la idea de balconear y promover encuentros y miradas hacia los espacios interiores. Una escalera externa, permite recorrer e interactuar, siendo esta un dispositivo que permite accionar la promenade entre plantas, en torno a la triple altura que actúa de rotula espacial.
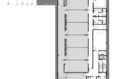
La planta subsuelo, de casi cuatro metros de altura, desarrolla el ala de las salas, y una de servicio de las mismas de máquinas, camarines, sanitarios, duchas y depósitos en el lateral derecho. Un pasillo en triple altura y el núcleo vertical vertebran la circulación que conecta la escalera principal y un ascensor panorámico con las seis salas, cuya característica es poder modularse o transformarse en salas más grandes o una única sala de acuerdo a un programa cultural variado, entre microteatro, convenciones y eventos de distinta índole.
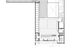
La planta de la terraza, domina visualmente sobre una barra del entrepiso, la sala del bar y el Restaurant. En este nivel se accede a una terraza con techo corredizo, una sala de exposiciones y eventos, en el que las vistas horizontales hacia la ciudad, la barra del nivel de acceso con su lámpara árbol y el patio de la selva conforman un espectáculo distinto según las horas del día.
Autores
Mariani Perez Maraviglia Cañadas arquitectos
Jeronimo Mariani . MAT CAPBA 17719
Maria Haydee Perez Maraviglia. MAT CAPBA 864
Oscar Cañadas. MAT CAPBA 17526
Mail: estudio@mpmcarquitectos.com 
Teléfono: (223) 4519836
Dirección: Bernardo de Irigoyen 3017, Mar del Plata
Web: www.mpmcarquitectos.com
Instagram: @mpmcarquitectos
Colaboradores
Arqs. Diego Juarez, Joaquin Coll, Bianca Muñoz, Pedro Tabbita
Categorías
Detalles
-Nombre del Proyecto: Chauvin
-Ubicación: San Luis 2849, Mar del Plata, Buenos Aires, Argentina
-Fecha/año de obra: 2022
-Superficie total: 1345 m2
-Créditos o menciones: Tercer premio CAPBA Obra Construida
2022, categoría “Edificio Residencial, administrativos, comerciales y arquitectura efimera”.
-Créditos o menciones:
Imasa (Constructora), Ing. Juan Pablo Sanmartano (estructuras) – Arq. Daniel Ottobre (Ingenieria acústica) – Rebs (tribunas telescopicas) – Ing. Alex Mir (Ingenieria de imagen) – Arq Adrian Pozzobon (inst. sanitaria) – Arq. Guillermina Casanelli (iluminación).
-Fotografía: Obralinda
                                                                                                                                                                                                            


